KRISTIANSAND S
Epleveien 5
Kort om eiendommen
Opplev Hånes! Et rolig og attraktivt område med strender, turstier og alt du trenger i nærheten. Fra boligen er det kort kjøretur til sentrum og Sørlandsparken. Hånes gir deg familievennlig bomiljø med skoler, barnehager og idrettsanlegg i gangavstand. Velholdt og funksjonell enderekkehus i firemannsbolig beliggende i et rolig og etablert boligområde. Boligen går over tre plan og har en praktisk planløsning som passer godt for barnefamilier. Boligen inneholder to romslige stuer med gode møbleringsmuligheter, kjøkken med god skap- og benkeplass, tre soverom samt to bad. Planløsningen gir fleksible bruksmuligheter og god plass til både hverdagsliv og gjester. Fra boligen er det fin utsikt og gode solforhold. Det medfølger garasjeplass i rekke med elbillader,samt parkering på tomt.
Nøkkelinfo
Prisantydning
4 150 000 kr
Omkostninger
121 412 kr
Totalpris
4 271 412 kr
Etasjer
3
Byggeår
1985
Soverom
3
Bad
2
Areal
164 m²
Type
Rekkehus
Eierform
Eier (selveier)
Fellesutgifter
-
Andel Fellesformue
-
Andel fellesgjeld
-
energimerking
Oransje E
Antall rom
5
Tomteareal
239.5
Fasiliteter
[object Object][object Object]
Salgsoppgave
Åpne salgsoppgave (.pdf)Innhold
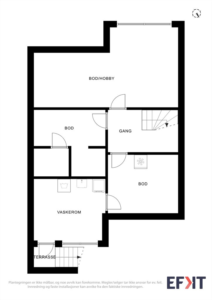
Underetasje : Vaskerom, 2 boder, kjølerom, bod1 etasje: Bad, gang/trapperom, stue, kjøkken
2 etasje: 2 soverom, soverom/stue, bad, gang/trapperom
Byggemåte
Selger har fått utarbeidet en tilstandsrapport, dvs. en teknisk gjennomgang av boligen hvor eventuelle avvik, risiko for kjøper og prisoverslag for hva som bør gjøres av oppgradering, er skissert. Se særskilt TGIU (tilstandsgrad ikke undersøkt), samt TG2 og TG3 som viser hva som er boligens normale slitasje, alder og type, hva som er avvik fra dette og hva som bør/må utbedres. Rapporten og selgers egenerklæring er en del av salgsoppgaven og må leses nøye før bud inngis.Kort oppsummering fra takstmann
Utvendig
Kledning (TG2):
Noe kledning er nyere, noe eldre. Ingen synlig råte, men eldre deler kan trenge vedlikehold.
Tiltak: Følg med og vedlikehold ved behov.
Tak/loft (TG2):
Litt dårlig lufting og noen kondensmerker.
Tiltak: Bedre lufting anbefales. Følg med jevnlig.
Vinduer (TG2):
Vinduer av ulik alder. Eldre vinduer har normal slitasje.
Tiltak: Modernisering av eldre vinduer på sikt.
Innvendig
Gulv/etasjeskille (TG2):
Noen høydeforskjeller og knirk.
Tiltak: Utbedringer er mulig, men sjelden lønnsomt uten totalrenovering.
Pipe/ildsted (TG2):
Normal alder.
Tiltak: Følg med over tid.
Kjellervegger (TG2):
Påforede vegger er risikokonstruksjon pga. mulig skjult fukt.
Tiltak: Følg med.
Innvendige dører (TG2):
Enkelte tar i karm/svill.
Tiltak: Justering.
Våtrom
Vaskerom (underetasje)
Malt gulv med noe fall, men ikke etter dagens krav (TG2).
Ikke moderne membran (TG2).
Kun ventil, ikke vifte (TG2).
Tiltak:
Vær forsiktig med vannbruk.
Følg med på tilstand.
Bad (2. etasje)
Trepanel enkelte steder tåler ikke direkte vann (TG2).
Feil fall på gulv (TG3).
Eldre membranløsning (TG2).
Kun ventil, ikke vifte (TG2).
Tiltak:
Vær forsiktig med vannsøl.
Renovering kreves for riktig fall/membran.
Vifte anbefales.
Kostnad fall-utbedring: 20 000–100 000 kr.
Kjøkken
Innredning (TG2):
Alt fungerer, men lekkasjesensor mangler (krav etter 2010).
Tiltak: Monter lekkasjesensor.
Tekniske installasjoner
Vannrør og avløpsrør (TG2):
Mer enn halvparten av levetiden brukt, men fungerer.
Tiltak: Følg med – eldre rør kan plutselig feile.
Varmepumpe (TG2):
Fra 2009, eldre.
Tiltak: Følg med – kan feile pga. alder.
Varmtvannsbereder (TG2):
Fra 2012. Ikke fast tilkoblet etter dagens regler.
Tiltak: Fast tilkobling anbefales.
Tomt
Drenering (TG2):
Gammel drenering og noe skade på grunnmursplast.
Tiltak: Følg med. Utskifting ved behov.
Utvendige vann- og avløpsrør (TG2):
Trolig fra byggeår.
Tiltak: Følg med. Utskifting ved renovering.
TG0: 3
TG1: 17
TG2: 20
TG3: 1, Den er at det er feil fall på gulv på bad i 2.etg. TIltak er å være oppmerksom ved bruk, hvis det skal endres så er kostnaden estimert til 20 000 - 100 000.
Boligen er oppført i tre.
Diverse
Tegninger stemmer ikke helt med dagens bruk.
Kjellerstue/bar står som «hobby» – ikke godkjent for varig opphold.
Håndverkstjenester utført siste 5 år
Megler har i det følgende valgt å peke på noen forhold i tilstandsrapporten som antas å ha interesse for en kjøper, det sammen er gjort med selgers egenerklæring. Megler vil poengtere at de viktigste dokumentene vedlagt salgsoppgaven vil være tilstandsrapporten og selgers egenerklæring. Det betyr at interessenter bør lese disse i sin helhet og gjøre seg opp en egen mening av viktigheten av de avvik som evt. er avdekket.
Kjøper overtar ansvaret for de opplysninger som fremkommer av salgsdokumentasjonen, og kan ikke gjøre gjeldende som mangel noe som burde vært kjent eller som ikke kan anses å ha betydning for avtalen.
Standard
Et trivelig og romslig enderekkehus med flott utsikt og en svært solrik beliggenhet på Hånes. Her bor du i et veletablert og populært område med kort vei til skole, barnehage, nærbutikk, kollektivtransport og fine turområder. Eiendommen ligger lunt til med gode uteflater og gode solforhold fra tidlig formiddag til senere kveld, rundt 20:30 på sommerstid.Boligen er gjennom årene jevnlig ivaretatt og fremstår som et hyggelig og funksjonelt hjem med en god romfølelse. Planløsningen er både praktisk og innholdsrik, og gir fleksibilitet for ulike livsfaser.
I underetasjen finner du et stort vaskerom, flere boder og et eget kjølerom som gir svært gode lagringsmuligheter. Det ligger også et hobbyrom/disp. rom her, som har varmekabler og kan egnes godt til alt fra verksted til treningsrom eller hobbybruk.
Hovedetasjen byr på en hyggelig entré og et åpent trapperom som binder etasjene fint sammen. Badet i denne etasjen har varmekabler og en moderne utforming. Videre kommer du inn i en lys og romslig stue med store vindusflater som slipper inn rikelig med naturlig lys og gir en nydelig utsikt. Fra stuen er det god kontakt med kjøkkenet, som er levert av Strai og fremstår som både stilfullt og praktisk. Her har du gode arbeidsflater, mye skapplass og en naturlig spiseplass i tilknytning.
I boligens øverste etasje finner du tre gode soverom, hvor det ene like gjerne kan brukes som ekstra stue, kontor eller lekerom dersom behovet tilsier det. Etasjen har i tillegg et ekstra bad med varmekabler, samt gang/trapperom som skaper en fin flyt mellom rommene.
Verdt å merke seg:
- God og praktisk planløsning over tre etasjer
- Pent og godt vedlikeholdt hjem
- Nyere kjøkken fra Strai
- To bad, begge med varmekabler
- Varmekabler også i vindfang og hobbyrom/bod
- Garasje i rekke + egen bilplass på tomt
- Solrik uteplass og flotte lysforhold
Velkommen til visning!
Løsøre og tilbehør
Vi viser til liste fra Norges Eiendomsmeglerforbund som gjelder fra 01.01.2020 angående løsøre og tilbehør.Oppvarming
Varmepumpe, vedFerdigattest/brukstillatelse
Der foreligger ferdigattest datert: 01.03.1984Det gjøres oppmerksom på at det ikke lenger utstedes ferdigattest på tiltak det er søkt om før 1998 jf. plan- og bygningsloven § 21-10. Kommunen vil ikke kreve ferdigattest for disse tiltakene og vil avvise eventuelle søknader. Bestemmelsen innebærer ikke at tiltak med manglende søknad blir lovlige, men at man ikke trenger å avslutte gamle byggesaker. Normalt sett kreves ferdigattest for alle søknadspliktige tiltak som gjøres etter plan- og bygningsloven.
Kjøper overtar alt ansvar, kostnad og risiko for dette videre.
Megler har innhentet boligens tegninger fra kommunen og har rutinemessig samholdt de med eiendommens faktiske planløsning, med fokus på om det er foretatt tiltak/endringer av bebyggelsen som evt. er søknadspliktige.
Megler har forsøket å avdekke såkalte lovlighetsmangler (utførte tiltak som er søknadpliktige men ikke godkjente). Det bemerkes at selv om megler foretar denne kontrollen er det ingen garanti for at det ikke kan forekomme forhold på eiendommen som ikke er i samsvar med søknad, lover og forskrifter.
Etter en gjennomgang av tegningene har megler funnet følgende avvik:
Kjeller er innredet som stue, men er hobbyrom/bod.
Det står kott på orginaltegning, men er en del av badet som er utvidet. Det er ikke søkt om.
Tinglyste heftelser og rettigheter
På eiendommen er det tinglyst følgende heftelser og rettigheter som følger eiendommens matrikkel ved overskjøting til ny hjemmelshaver:4204/63/637, 4204/63/630:
05.08.2002 - Dokumentnr: 13866 - Forkjøpsrett på vilkår
06.09.1985 - Dokumentnr: 13963 - Registrering av grunn
Denne matrikkelenhet opprettet fra:
Knr:1001 Gnr:63 Bnr:411
Eventuell adgang til utleie
Boligen er i dag ikke utleid, men kan leies ut i sin helhet. Det bemerkes at eier plikter å fremlegge dokumentasjon på at det er gjennomført radonmåling ved utleie.Beliggenhet
Epleveien 5 ligger i et rolig og etablert boligområde på Hånes, øst for Kristiansand sentrum. Området er kjent for trygge boliggater, gode sol- og uteforhold og nærhet til både natur, strand og daglige tjenester. Det er også et godt utvalgt barnehager og skoler i nærområdet.Fra boligen er det kort vei til Kvadraturen (sentrum) med hyppige bussforbindelser via AKT sitt linjenett; linje M2 betjener Hånes–Kvadraturen gjennom dagen. Det gir enkel tilgang til byens tilbud, arbeidsplasser og togforbindelser.
For hverdagstilbud ligger Sørlandsparken like i nærheten, med et bredt utvalg av butikker og servicetilbud.
Adkomst
Det vil bli skiltet med visningsskilt fra Spareskillingsmegleren under annonserte visninger.Barnehager, skoler og fritid
Se vedlagt nabolagsprofil, eller ta kontakt med Kristiansand kommune eller kommunens hjemmeside for mer informasjon.Beskrivelse av tomt
Pent opparbeidet selveid tomt.Parkering
Garasje i rekke, samt parkering på tomt.Vei, vann og avløp
Stikkledninger fra eiendommen og ut til kommunalt nett er å anse som privat, hvor eier av eiendommen har vedlikeholdsansvaret.Regulerings-og arealplaner
Reguleringsplan for Hånes felt BF og Epleveien, Kristiansand. Regulert til boligformål ihht.sak nr. 436 som ble godkjent av bystyret i Kristiansand den 19.12.1984.Fellesutgifter
-Kommunale utgifter
De kommunale avgiftene er fordelt på fire terminer. Opplyste tall er tall fra forrige kalenderår. Det bemerkes at inklusiv i de oppgitte kommunale avgiftene ligger eiendomsskatten.De kommunale avgiftene vil variere etter forbruk av vann. Det betales for forbruk avløp, forbruk vann, abonnementgebyr for vann og avløp, samt feie og tilsynsgebyr.
I tillegg påløper gebyr for renovasjon fra Avfall Sør.
Som husholdningskunde med avfallsdunker betaler du renovasjonsgebyr som består av en fast og en variabel del.
Fast årsgebyr beregnes ut fra antall boenheter på eiendommen din, samt størrelse/antall dunker for papp/papir og bioavfall.
Variabelt gebyr avhenger av størrelse/antall dunker for restavfall og bioavfall, samt hvor ofte du tømmer dunken for restavfall og bioavfall (utover de 12 tømmingene bioavfall som er inkludert i det faste årsgebyret).
Hvor mye du betaler årlig avhenger i stor grad av hvor ofte du setter ut dunken for restavfall hjemme hos deg.
* Fast årsgebyr for avfallsdunker - per boenhet kr 2 156,49 pr år.
* Fast årsgebyr for papp og papir 120/140 liters dunk kr 467,79 pr. år
* Fast årsgebyr bioavfall kr 455,16
* Variabelt gebyr bioavfall kr 37,93 pr. tømming
* Variabelt gebyr restavfall kr 171,51 pr. tømming
Det tas om prisendringer hos leverandøren. For oppdaterte priser henvises til: https://avfallsor.no/hjemme-hos-deg/priser-og-gebyrer/
Eiendomsskatt
Eiendomsskatten utgjør kr. 9 266 ,- pr år.Omkostninger
4 150 000,- (Prisantydning)Omkostninger:
16 400,- (Boligkjøperforsikring (valgfritt))
545,- (Tingl.gebyr pantedokument)
545,- (Tingl.gebyr skjøte)
103 750,- (Dokumentavgift (forutsatt salgssum: 4 150 000,00))
121 412,- (Omkostninger totalt)
4 271 412,- (Totalpris inkl. omkostninger)
Tilbud om lånefinansiering
Megler setter deg gjerne i kontakt med en rådgiver hos vår samarbeidspartner, Spareskillingsbanken. Som eier av Spareskillingsmegleren tilbyr de konkurransedyktige betingelser og en rask, smidig og løsningsorientert behandling av din lånesøknad – slik at du kan realisere boligdrømmen på en enkel og trygg måte.Betalingsbetingelser
I henhold til lov om hvitvasking og terrorfinansiering har megler plikt til å gjennomføre kontrolltiltak ovenfor kunder. Dette innebærer å bekrefte kunders identitet på bakgrunn av fremvist gyldig legitimasjon. Videre innebærer det å få bekreftet identiteten til eventuelle reelle rettighetshavere, og å innhente opplysninger om kundeforholdets formål og tilsiktede art.Dersom slike kundetiltak ikke kan gjennomføres kan megler ikke etablere kundeforholdet eller utføre transaksjonen.
Kjøper oppfordres til å innbetale kjøpesummen som ikke kommer fra låneinstitusjon, i en samlet innbetaling fra egen konto i norsk bank.
Dersom megler får mistanke om brudd på hvitvaskingsreglementet i forbindelse med en eiendomshandel, og han ikke klarer å få avkreftet denne mistanke, har han plikt til å rapportere dette til Økokrim.
Melding sendes Økokrim uten at partene varsles. Megler kan i enkelte tilfeller også ha plikt til å stanse gjennomføring av handelen. Kjøpesum inkludert omkostninger skal være innbetalt til Spareskillingsmegleren sin klientkonto før overtakelse.
Eier
-Boligselgerforsikring
Det opplyses at i de tilfelle oppdrasgiver har tegnet boligselgerforsikring fra Gjensidige så mottar meglerforetaket honorar for det arbeidet som foretaket utfører for å etablere forsikringenBoligkjøperforsikring
Mange kjøpere har anledning til å tegne boligkjøperforsikring. Vedlagt i salgsoppgaven følger informasjon om Boligkjøperforsikring fra HELP Forsikring AS. Boligkjøperforsikring er en rettshjelpsforsikring som gir trygghet og profesjonell juridisk hjelp dersom det oppdages uventede feil eller mangler ved boligen de neste fem årene. Les mer om Boligkjøperforsikring i vedlagte materiell eller på help.no. Det gjøres oppmerksom på at meglerforetaket mottar kr 4 700,- / 5 200,- / 6 800,- i kostnadsgodtgjørelse for Boligkjøperforsikring (avhengig av boligtype).Budgivning
Bud kan legges inn på nettannonsen på "gi bud" knappen eller via hjemmesiden. Ved elektronisk budgivning så kan bud legges inn trygt og enkelt med bank-ID. Megler kan også kontaktes for tilsendelse av budkjema og budskjema finnes også i salgsoppgaven.All budgivning må foregå ved skriftlighet. Ikke nøl med å ta kontakt dersom det er behov for bistand for å gi bud.
Eiendomsmegler skal legge til rette for en forsvarlig avvikling av budrunden og kan ikke videreformidle bud med en kortere akseptfrist enn kl. 12.00 første virkedag etter siste annonserte visning. Etter klokken 11:30 anbefaler vi akseptfrist på minimum 30 minutter.
Hvitvaskingsreglene
Eiendomsmeglere er underlagt lov om hvitvasking og er forpliktet til å rapportere til Økokrim om mistenkelige transaksjoner. Lov om hvitvasking innehar også strenge regler om kontroll av legitimasjon fra alle parter i handelen, herunder, selger, kjøper og fullmektiger for disse.Personopplysningsloven
Personopplysninger blir behandlet i samsvar med personopplysningsloven.Lovanvendelse
Tilbehørsliste som er utarbeidet av meglerbransjen i fellesskap er inntatt i salgsoppgaven, og gjelder dersom ikke annet er særskilt avtalt.Generelle bestemmelser
Salgsoppgaven er basert på de opplysningene selger har gitt til megler, den bygningssakyndiges tilstandsrapport, samt opplysninger innhentet fra kommunen, Kartverket og andre tilgjengelige kilder. Det er viktig at kjøper setter seg grundig inn i alle salgsdokumentene, herunder salgsoppgave, tilstandsrapport og selgers egenerklæring. Kjøper anses kjent med forhold som er tydelig beskrevet i salgsdokumentene, og slike forhold kan ikke påberopes som mangler. Dette gjelder uavhengig av om kjøper har lest dokumentene. Alle interessenter oppfordres til å undersøke eiendommen nøye, gjerne sammen med fagkyndig før bud inngis. Kjøper som velger å kjøpe usett kan ikke gjøre gjeldende som mangel noe han burde blitt kjent med ved undersøkelsen.
Dersom det er behov for avklaringer, anbefaler vi at interessenter rådfører seg med eiendomsmegler eller egne rådgivere før det legges inn bud.
En bolig som har blitt brukt i en viss tid, har vanligvis blitt utsatt for slitasje og skader kan ha oppstått. Slik bruksslitasje må kjøper regne med, og det kan avdekkes enkelte forhold etter overtakelse som nødvendiggjør utbedringer. Normal slitasje og skader som nødvendiggjør utbedring, er innenfor hva kjøper må forvente og vil ikke utgjøre en mangel.
Kjøper og selgers rettigheter og plikter reguleres av avtalen mellom partene, samt informasjonen som har vært tilgjengelig for kjøperen i forbindelse med handelen. Avtalen utfylles av avhendingsloven, og det gjelder ulike avtalevilkår avhengig av om kjøper er forbrukerkjøper eller ikke. Dette er nærmere beskrevet nedenfor.
På grunn av ulike avtalevilkår kan selger vurdere bud fra en som ikke er forbruker, ulikt fra en forbrukers bud. Dersom kjøper ikke er forbruker, er selger sitt mulige mangelsansvar begrenset fordi eiendommen selges "som den er". Selger kan ikke ta «som den er» forbehold ovenfor en forbrukerkjøper. Selv et lavere bud fra en som ikke er forbruker kan foretrekkes fordi begrensningen i mulig mangelsansvar kan ha egenverdi for selger. Selger står fritt til å forkaste eller akseptere ethvert bud, og er for eksempel ikke forpliktet til å akseptere høyeste bud.
Budgiver skal i budskjema avgi egenerklæring om budgiver er forbruker eller næringsdrivende/ person som hovedsakelig handler som ledd i næringsvirksomhet. Budgivere får informasjon dersom andre bud er inngitt av en som ikke er forbruker. Forbrukerkjøp - definisjon Med forbrukerkjøp menes kjøp av eiendom når kjøperen er en fysisk person som ikke hovedsakelig handler som ledd i næringsvirksomhet.
Forbruker - avtalevilkår Eiendommen har en mangel dersom den ikke er i samsvar med kravene som følger av avtalen, eller det foreligger brudd på bestemmelsene i avhendingsloven §§ 3-2 til 3-8. Hvis eiendommen ikke er i samsvar med det kjøperen må kunne forvente ut ifra alder, type og synlig tilstand, kan det være grunnlag for mangelskrav. Det samme gjelder hvis det er holdt tilbake eller gitt uriktige opplysninger om eiendommen. Dette gjelder likevel bare dersom man kan gå ut ifra at det virket inn på avtalen at opplysningen ikke ble gitt eller at uriktige opplysninger ikke blir rettet i tide på en tydelig måte.
Boligen kan ha en mangel etter avhendingsloven § 3-3 dersom det er avvik mellom opplyst og faktisk innvendig areal, forutsatt at avviket er på 2% eller mer og minimum 1 kvm. Ved beregning av et eventuelt prisavslag eller erstatning må kjøper selv dekke tap/ kostnader opptil et beløp på kr 10 000 (egenandel). Ikke-forbruker (næringsdrivende) – definisjon Hvis kjøper er en juridisk person, eller en fysisk person som hovedsakelig handler som ledd i næringsvirksomhet, vil kjøpet ikke anses som et forbrukerkjøp.
Ikke-forbruker - avtalevilkår Eiendommen har en mangel dersom den ikke er i samsvar med kravene som følger av avtalen. Eiendommen selges «som den er», og selgers ansvar utover det konkret avtalte er da begrenset etter avhendingsloven § 3-9, første ledd andre setning.
Avhendingsloven § 3-3 andre ledd fravikes, og hvorvidt boligens arealsvikt utgjør en mangel vurderes etter avhendingsloven § 3-8. Informasjon om kjøpers undersøkelsesplikt, herunder oppfordringen om å undersøke eiendommen nøye, gjelder også for kjøpere som ikke anses som forbrukere.
Meglers vederlag
MEGLERS VEDERLAG:Fotografering kr 6 250
Provisjon/vederlag: 1,50%
Markedspakke: kr 22 500
Oppgjørshonorar kr 8 900
Tilrettelegging kr 16 900
Oppslag heftelser og servitutter kr 2 200
Visningshonorar kr 0
FORVENTEDE UTLEGG:
Tinglysingsgebyr sikring kr 545
Kommunale opplysninger kr 3 703
Stylist rådgivning kr 1 899
Rabatt kr -15 000
Meglerforetaket påtar seg oppgaver i forbindelse med at oppdragsgiver ønsker å kjøpe diverse tjenester og produkter. Meglerforetaket gis honorar for sitt arbeid med dette.
Meglerforetaket har følgende faste samarbeidspartnere i forbindelse med dette oppdraget hvor det mottas vederlag:
OVERO - Leverer bl.a digital overtagelsesprotokoll
EFKT - Fototjenester
Help - Boligkjøperforsikring
Dato
Sist oppdatert: 5. mars 2026 kl. 08:21Område
Megler

Thorstein ten Velden
Eiendomsmegler MNEF
Thorstein har lang fartstid fra eiendomsmegleryrket. Han ble uteksaminert som Eiendomsmegler fra BI Oslo i år 2000 og har jobbet som eiendomsmegler siden.
Han har hatt 2 perioder som nestleder i NEF Sørlandet, lokalforeningen til Norges Eiendomsmeglerforbund.
Thorstein bor i Ytre Vågsbygd, er gift og har 3 barn. Fritiden går til å være en del av trenerapparatet til ungdomsfotballen i FK. Våg.
«Som eiendomsmegler lever jeg en livsstil der jeg er på ballen 24/7 – alltid tilgjengelig, alltid engasjert. Jeg brenner for å skape gode kundeopplevelser og gjøre boligreisen til noe hyggelig og minneverdig»