SØGNE
Nordre Stifjellet 22
Kort om eiendommen
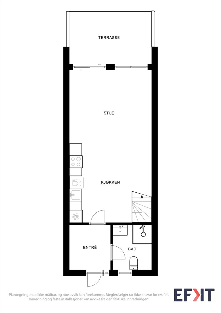
Ny flott rekkehusbebyggelse over to plan i arkitektonisk spennende bygg som ligger parallellforskjøvet og sikrer gode bokvaliteter for alle. Boligen er ikke tidligere vært bebodd og har ingen overflateslitasje. Det er en høy bygningsmessig utførelse på det arbeidet som er gjort. Med boligen følger det bod i felles bodrekke. Parkering på sameiets grunn. Boligen ligger i et nytt solrikt og spennende boligfelt i nærheten av Årosstranden, fantastiske tur og rekreasjonsområder i omgivelsene. Boligen har uteplass/terrasse, to bad og tre soverom.
Nøkkelinfo
Prisantydning
3 990 000 kr
Omkostninger
38 580 kr
Totalpris
4 028 580 kr
Etasjer
1
Byggeår
2025
Soverom
3
Bad
2
Areal
95 m²
Type
Eierseksjon
Eierform
Eierseksjon
Fellesutgifter
500 kr
Andel Fellesformue
-
Andel fellesgjeld
-
energimerking
-
Antall rom
5
Tomteareal
1296.4
Fasiliteter
Balkong, Rolig, Off. vann og avløp, Hage, Turterreng, Husdyr, Balansert ventilasjon
Salgsoppgave
Åpne salgsoppgave (.pdf)Innhold
Boligen er organisert i et sameie/eierseksjonssameie som består av fem seksjoner. Tomten er felles for sameiet. Se vedlagte seksjoneringsbegjæring.Byggemåte
Det er gjenomført noen kontroll/tilstandsrapport i forbindelse med salget. Bakgrunnen er at boligen er nylig overtatt, det er ikke gjennomført ett års befaring fra utbygger, og det er fem års reklamasjonsperiode in takt, samt det ble etablert en lovpålagt garantistillelse fra selgeren til kjøperen (§12 garanti etter bustadoppføringslova)Standard
Gjennomgående god Norsk byggeskikk og standard. Bebyggelsen innehar de kvaliteter som TEK 17 (teknisk forskrift krever for beboelse/ bolighus)Løsøre og tilbehør
Vi viser til liste fra Norges Eiendomsmeglerforbund som gjelder fra 01.01.2020 angående løsøre og tilbehør. Selger er positiv til å selge inventar etter nærmere avtale.Oppvarming
ElektriskFerdigattest/brukstillatelse
Ferdigattest er rekvirert men i skrivende stund ikke mottattTinglyste heftelser og rettigheter
På eiendommen er det tinglyst følgende heftelser og rettigheter som følger eiendommens matrikkel ved overskjøting til ny hjemmelshaver:Det er registrert en rekke heftelser på eiendommen, megler har i det følgende tatt et utdrag av disse som anes å ha en viss relevans. Det bemerkes at det er pliktig medlemskap i velforening, ut over de er dette ordinære vilkår hvor bl.a kommunen skal ha rett til å vedlikeholde infrastruktur, rett til bredband, kraftlinjer etc.
19.10.2023 - Dokumentnr: 1166189 - Registerenheten kan ikke disponeres over uten samtykke fra rettighetshaver
Rettighetshaver: Eiendomsmegler 1 Sr-Eiendom AS
Org.nr: 958 427 700
Overført fra: Knr:4204 Gnr:420 Bnr:703
Gjelder denne registerenheten med flere
19.10.2023 - Dokumentnr: 1166196 - Bestemmelse om vann/kloakk
Rettighetshaver: Kristiansand Kommune
Org.nr: 820 852 982
Bestemmelse om vedlikehold av anlegg/ledninger
Overført fra: Knr:4204 Gnr:420 Bnr:703
Gjelder denne registerenheten med flere
19.10.2023 - Dokumentnr: 1166196 - Bestemmelse om elektriske ledninger/kabler
Rettighetshaver: Kristiansand Kommune
Org.nr: 820 852 982
Bestemmelse om vedlikehold av anlegg/ledninger
Overført fra: Knr:4204 Gnr:420 Bnr:703
Gjelder denne registerenheten med flere
19.10.2023 - Dokumentnr: 1166196 - Bestemmelse om fiber-/data-/telekabel
Rettighetshaver: Kristiansand Kommune
Org.nr: 820 852 982
Bestemmelse om vedlikehold av anlegg/ledninger
Overført fra: Knr:4204 Gnr:420 Bnr:703
Gjelder denne registerenheten med flere
19.10.2023 - Dokumentnr: 1166196 - Bestemmelse om gjerde
Overført fra: Knr:4204 Gnr:420 Bnr:703
Gjelder denne registerenheten med flere
19.10.2023 - Dokumentnr: 1166196 - Bestemmelse om medlemskap i velforening/huseierforening
Overført fra: Knr:4204 Gnr:420 Bnr:703
Gjelder denne registerenheten med flere
17.12.2024 - Dokumentnr: 2379718 - Registerenheten kan ikke disponeres over uten samtykke fra rettighetshaver
Rettighetshaver: Hedengran Eiendom AS
Org.nr: 926 187 457
16.02.2024 - Dokumentnr: 1109161 - Seksjonering
Opprettet seksjoner:
Snr: 4
Formål: Bolig
Tilleggsdel: Bygning
Sameiebrøk: 96/480
Eventuell adgang til utleie
Eiendommen kan fritt leies ut i sin helhetBeliggenhet
-Adkomst
-Barnehager, skoler og fritid
-Beskrivelse av tomt
Felles eiet tomt i sameietParkering
Parkering på sameiets grunnVei, vann og avløp
OffentligRegulerings-og arealplaner
Regulert til boligbebyggelse i tråd med plan 1543 stifjellet detaljregulering rev 08.02.2022Fellesutgifter
Dekning av følgende årlige kostander:Vedlikehold: 5 000
Forsikring: 15 000
Brøyting: 10 000
Sum pr år: 30 000
Kommunale utgifter
Kommunen er forespurt om de kommunale avgiftene og eiendomskatten, men har ikke i skrivende stund ikke oversendt dette. Ut fra meglers erfaringsgrunnlag vil det forventes at de samlende avgiftene beløper seg årlig til +- kr 15 000I de kommunale avgiftene ligger også eiendomsskatten i tillegg til abonnementsgebyr for vann og avløp og et stipulert forbruk av vann og avløp. Det bemerkes at de kommunale avgiftene dermed kan variere som følge av forbruk.
I tillegg påløper renovasjonsgebyr fra Avfall Sør gebyrene varierer etter tømminer, men det belastes et felles abonnementsgebyr for sameie på
kr 2 156,49 pr. år for priser på de variable gebyrene henvises til: https://avfallsor.no/tips-og-informasjon/priser-og-gebyrer/
Formuesverdi
-Eiendomsskatt
-Omkostninger
3 990 000,00 (Prisantydning)Omkostninger
37 500,00 (Dokumentavgift av andel tomteverdi (1,5 mill))
540,00 (Tinglysningsgebyr pantedokument)
540,00 (Tinglysningsgebyr skjøte)
--------------------------------------------------------
38 580,00 (Omkostninger totalt)
--------------------------------------------------------
4 028 580,00 (Totalpris inkl. omkostninger)
--------------------------------------------------------
Det gjøres oppmerksom på at oppgitte omkostninger er i skrivende stund et estimat. Bakgrunnen er at eiendommen er i sin helhet nyoppført og er ikke tidligere overført til eier, da eier har in blanco skjøte. Det betyr at dokumentavgiften skal beregnes av andel tomteverdi og ikke kjøpesummen. Megler har stipulert/anslått tomteverdien til kr 1 500 000,- Tomteverdien er rekvirert men i skrivende stund ikke mottatt. Hvis tomteverdien viser seg å være levere vil verdien reduseres med 2,5% av reduksjonen, tilsvarende forhøyet vil den bli ved økning i tomteverdien.
Tilbud om lånefinansiering
Ta kontakt med megler som vil sette deg i kontakt med en dyktig rådgiver i SpareskillingsbankenBetalingsbetingelser
I henhold til lov om hvitvasking og terrorfinansiering har megler plikt til å gjennomføre kontrolltiltak ovenfor kunder. Dette innebærer å bekrefte kunders identitet på bakgrunn av fremvist gyldig legitimasjon. Videre innebærer det å få bekreftet identiteten til eventuelle reelle rettighetshavere, og å innhente opplysninger om kundeforholdets formål og tilsiktede art.Dersom slike kundetiltak ikke kan gjennomføres kan megler ikke etablere kundeforholdet eller utføre transaksjonen.
Kjøper oppfordres til å innbetale kjøpesummen som ikke kommer fra låneinstitusjon, i en samlet innbetaling fra egen konto i norsk bank.
Dersom megler får mistanke om brudd på hvitvaskingsreglementet i forbindelse med en eiendomshandel, og han ikke klarer å få avkreftet denne mistanke, har han plikt til å rapportere dette til Økokrim.
Melding sendes Økokrim uten at partene varsles. Megler kan i enkelte tilfeller også ha plikt til å stanse gjennomføring av handelen. Kjøpesum inkludert omkostninger skal være innbetalt til Spareskillingsmegleren sin klientkonto før overtakelse.
Eier
-Boligselgerforsikring
Selger har ikke tegnet boligselgerforsikringBoligkjøperforsikring
Mange kjøpere har anledning til å tegne boligkjøperforsikring. Vedlagt i salgsoppgaven følger informasjon om Boligkjøperforsikring fra HELP Forsikring AS. Boligkjøperforsikring er en rettshjelpsforsikring som gir trygghet og profesjonell juridisk hjelp dersom det oppdages uventede feil eller mangler ved boligen de neste fem årene. Les mer om Boligkjøperforsikring i vedlagte materiell eller på help.no. Det gjøres oppmerksom på at meglerforetaket mottar kr 4 700,- / 5 200,- / 6 800,- i kostnadsgodtgjørelse for Boligkjøperforsikring (avhengig av boligtype).Budgivning
Bud kan legges inn på nettannonsen på "gi bud" knappen eller via hjemmesiden. Ved elektronisk budgivning så kan bud legges inn trygt og enkelt med bank-ID. Megler kan også kontaktes for tilsendelse av budkjema og budskjema finnes også i salgsoppgaven.All budgivning må foregå ved skriftlighet. Ikke nøl med å ta kontakt dersom det er behov for bistand for å gi bud.
Eiendomsmegler skal legge til rette for en forsvarlig avvikling av budrunden og kan ikke videreformidle bud med en kortere akseptfrist enn kl. 12.00 første virkedag etter siste annonserte visning. Etter klokken 11:30 anbefaler vi akseptfrist på minimum 30 minutter.
Hvitvaskingsreglene
Eiendomsmeglere er underlagt lov om hvitvasking og er forpliktet til å rapportere til Økokrim om mistenkelige transaksjoner. Lov om hvitvasking innehar også strenge regler om kontroll av legitimasjon fra alle parter i handelen, herunder, selger, kjøper og fullmektiger for disse.Personopplysningsloven
Personopplysninger blir behandlet i samsvar med personopplysningsloven.Lovanvendelse
Tilbehørsliste som er utarbeidet av meglerbransjen i fellesskap er inntatt i salgsoppgaven, og gjelder dersom ikke annet er særskilt avtalt.Generelle bestemmelser
Salgsoppgaven er basert på de opplysningene selger har gitt til megler, den bygningssakyndiges tilstandsrapport, samt opplysninger innhentet fra kommunen, Kartverket og andre tilgjengelige kilder. Det er viktig at kjøper setter seg grundig inn i alle salgsdokumentene, herunder salgsoppgave, tilstandsrapport og selgers egenerklæring. Kjøper anses kjent med forhold som er tydelig beskrevet i salgsdokumentene, og slike forhold kan ikke påberopes som mangler. Dette gjelder uavhengig av om kjøper har lest dokumentene. Alle interessenter oppfordres til å undersøke eiendommen nøye, gjerne sammen med fagkyndig før bud inngis. Kjøper som velger å kjøpe usett kan ikke gjøre gjeldende som mangel noe han burde blitt kjent med ved undersøkelsen.
Dersom det er behov for avklaringer, anbefaler vi at interessenter rådfører seg med eiendomsmegler eller egne rådgivere før det legges inn bud.
En bolig som har blitt brukt i en viss tid, har vanligvis blitt utsatt for slitasje og skader kan ha oppstått. Slik bruksslitasje må kjøper regne med, og det kan avdekkes enkelte forhold etter overtakelse som nødvendiggjør utbedringer. Normal slitasje og skader som nødvendiggjør utbedring, er innenfor hva kjøper må forvente og vil ikke utgjøre en mangel.
Kjøper og selgers rettigheter og plikter reguleres av avtalen mellom partene, samt informasjonen som har vært tilgjengelig for kjøperen i forbindelse med handelen. Avtalen utfylles av avhendingsloven, og det gjelder ulike avtalevilkår avhengig av om kjøper er forbrukerkjøper eller ikke. Dette er nærmere beskrevet nedenfor.
På grunn av ulike avtalevilkår kan selger vurdere bud fra en som ikke er forbruker, ulikt fra en forbrukers bud. Dersom kjøper ikke er forbruker, er selger sitt mulige mangelsansvar begrenset fordi eiendommen selges "som den er". Selger kan ikke ta «som den er» forbehold ovenfor en forbrukerkjøper. Selv et lavere bud fra en som ikke er forbruker kan foretrekkes fordi begrensningen i mulig mangelsansvar kan ha egenverdi for selger. Selger står fritt til å forkaste eller akseptere ethvert bud, og er for eksempel ikke forpliktet til å akseptere høyeste bud.
Budgiver skal i budskjema avgi egenerklæring om budgiver er forbruker eller næringsdrivende/ person som hovedsakelig handler som ledd i næringsvirksomhet. Budgivere får informasjon dersom andre bud er inngitt av en som ikke er forbruker. Forbrukerkjøp - definisjon Med forbrukerkjøp menes kjøp av eiendom når kjøperen er en fysisk person som ikke hovedsakelig handler som ledd i næringsvirksomhet.
Forbruker – avtalevilkår Eiendommen har en mangel dersom den ikke er i samsvar med kravene som følger av avtalen, eller det foreligger brudd på bestemmelsene i avhendingsloven §§ 3-2 til 3-8. Hvis eiendommen ikke er i samsvar med det kjøperen må kunne forvente ut ifra alder, type og synlig tilstand, kan det være grunnlag for mangelskrav. Det samme gjelder hvis det er holdt tilbake eller gitt uriktige opplysninger om eiendommen. Dette gjelder likevel bare dersom man kan gå ut ifra at det virket inn på avtalen at opplysningen ikke ble gitt eller at uriktige opplysninger ikke blir rettet i tide på en tydelig måte.
Boligen kan ha en mangel etter avhendingsloven § 3-3 dersom det er avvik mellom opplyst og faktisk innvendig areal, forutsatt at avviket er på 2% eller mer og minimum 1 kvm. Ved beregning av et eventuelt prisavslag eller erstatning må kjøper selv dekke tap/ kostnader opptil et beløp på kr 10 000 (egenandel). Ikke-forbruker (næringsdrivende) – definisjon Hvis kjøper er en juridisk person, eller en fysisk person som hovedsakelig handler som ledd i næringsvirksomhet, vil kjøpet ikke anses som et forbrukerkjøp.
Ikke-forbruker – avtalevilkår Eiendommen har en mangel dersom den ikke er i samsvar med kravene som følger av avtalen. Eiendommen selges «som den er», og selgers ansvar utover det konkret avtalte er da begrenset etter avhendingsloven § 3-9, første ledd andre setning.
Avhendingsloven § 3-3 andre ledd fravikes, og hvorvidt boligens arealsvikt utgjør en mangel vurderes etter avhendingsloven § 3-8. Informasjon om kjøpers undersøkelsesplikt, herunder oppfordringen om å undersøke eiendommen nøye, gjelder også for kjøpere som ikke anses som forbrukere.
Meglers vederlag
Fast vederlag kr 30 000Tilrettelegging kr 15 000
Oppslag grunnboken kr 2 500
Fotograf kr 7 500
Annonsering kr 13 900
Oppgjør kr 8 650
Dato
Sist oppdatert: 25. november 2025 kl. 07:30Område
Megler

Jøran Flakk
Fagsjef - Eiendomsmegler MNEF
Jøran (52) har nesten 30 års erfaring som eiendomsmegler og har hatt lederroller for både store kontorer og regioner. Som fagsjef er han faglig engasjert og opptatt av at kvalitet og profesjonalitet alltid står i fokus.
Jøran bor på Tregde i Mandal med kone og to barn.
«Jeg elsker å ha et yrke hvor jeg kan kombinere det å jobbe med både mennesker og eiendom».