KRISTIANSAND S
Røsslyngstien 10
Kort om eiendommen
Eiendommen har en fin plassering på toppen av Justneshalvøya med nydelig utsikt mot syd og vest. Boligen strekker seg over 3 plan og består blant annet av fire soverom (mulighet for 5), to flislagte bad, vaskerom/wc, to stuer og kjøkken. Det er garasje, flere parkeringsplasser og egen bod til hagemøbler, sykler og sportsutstyr. Det er enkelt å omgjøre underetasjen til praktikantdel og det meste av utstyret til dette kan følge med* Eiendommen ligger i et populært og veletablert boligområde. Fra boligen har man kort vei til både dagligvarehandel og man er bare en kort kjøretur unna Kristiansand sentrum og Universitetet i Agder. I nærområdet finner man også flere flotte tur- og rekreasjonsområder som kan benyttes året rundt.. Velkommen til visning!
Nøkkelinfo
Prisantydning
6 890 000 kr
Omkostninger
186 492 kr
Totalpris
7 076 492 kr
Etasjer
3
Byggeår
2010
Soverom
4
Bad
3
Areal
210 m²
Type
Enebolig
Eierform
Eier (selveier)
Fellesutgifter
-
Andel Fellesformue
-
Andel fellesgjeld
-
energimerking
Rød B
Antall rom
6
Tomteareal
269.4
Fasiliteter
Balkong, Parkett, Barnevennlig, Rolig, Garasje, Off. vann og avløp, Utsikt, Airconditioning, Bredbånd, Sentralt, Turterreng, Takterrasse, Husdyr, Lademulighet
Salgsoppgave
Åpne salgsoppgave (.pdf)Innhold
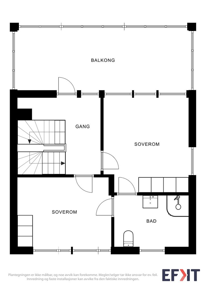
Underetasjen: To soverom, bad, bod, vaskerom, stue/ kjøkken.1. etasje: Gang, vaskerom/ wc, stue/ kjøkken og bod.
2. etasje: To soverom, bad og trapperom.
Byggemåte
Enebolig bygget 2010, dagens eier har eid siden nytt. Innholdsrik bolig. Boligen fremstår hovedsaklig i normal teknisk stand utfraalder. Merknader kommentert utfra alder, slitasje og at bygningsdeler vurderes kontra dagens strengere krav.
Der det gis tg2 og tg3 så er det gitt en tiltaksbeskrivelse. Dette er takstmannens vurdering, og er på ingen måte fasit på tiltak, men en vurdering utfra fornuft/økonomi, risiko for avvik mm. Kjøper må selv vurdere tiltak. Levetid bygningsdeler er en statistisk variabel, og er ikke "eksaktvitenskap". Dette innebærer at levetider kan variere betydelig ut
fra vedlikehold, bruk, sammensetning, og hvor værutsatt bygningsdelen er.
Enkelte bygningsdeler vurderes utfra en nyere byggeforskrift. Dette tilsier at ting kan være bygget riktig utfra byggeår, men at det likevel får et avvik utfra dagens forskrifter. Når man leser rapporten så er det viktig at man leser både beskrivelse, avviks beskrivelse og tiltaks beskrivelse, da får man god oversikt.
Spørsmål vedrørende rapporten kan stilles i kontortid mellom 8- 16 på hverdager, til tlf 454 77 777, eller e-post: [email protected].
Disse punktene har fått tilstandsgrad 2:
*Taktekking
Noe lite fall på garasje? Ligger litt vann igjen etter nedbør.
*Veggkonstruksjon
Det er normalt at det kan forekomme noe malingflass/løs puss på pussede overflater.
*Dører
Balkongdør nede, trenger justering. Henger.
*Balkonger, terrasser og rom under balkonger
Byggeforskrifter ble endret i 2017 til at rekkverk/gjerde skal være 100cm. Tidligere krav var 90cm og lavere avhengig av år. Høyden er normal utfra når bygget, men bedømmes etter dagens forskrift.
*Overflater
Det er stedvis slitasjemerker etter tidens tann, som f.eks:
- merker gulv i stue.
- merker gulv kjøkken.
- enklere skillevegg bod/vaskerom underetasje. mm
*Sluk, membran og tettesjikt
Vurdering basert på alder. Tilstandsgrad 2 gis med bakgrunn i at mer enn halvparten av forventet brukstid for membran/tettesjikt er passert.
Det er nå ingen symptomer på funksjonssvekkelse, men vær oppmerksom på at dette er en risikokonstruksjon. NorskStandard regner estimert levetid membran 20 år. Ved alder over 10 år så regnes da mer enn halvparten av estimert levetid oppnådd og man får tg2 utfra alder alder.
*Overflater gulv
Mindre misfaring fug dusjsone. Fall i dusj, men stedvis lite fall ellers.
*Sluk, membran og tettesjikt (underetasje bad).
Vurdering basert på alder. Tilstandsgrad 2 gis med bakgrunn i at mer enn halvparten av forventet brukstid for membran/tettesjikt er passert.
Det er nå ingen symptomer på funksjonssvekkelse, men vær oppmerksom på at dette er en risikokonstruksjon.
NorskStandard regner estimert levetid membran 20 år. Ved alder over 10 år så regnes da mer enn halvparten av estimert levetid oppnådd og man får tg2 utfra alder alene.
*Sanitærutstyr og innredning
Det er ikke synlig drens-spalte under wc. Dette medfører at man ikke vil avdekke evt. lekkasje fra skjult sisterne i vegg.
*Overflater gulv
Det er fall mot sluk i rommet men liten oppkant dørsvill og vaskemaskin plassert like ved siden av, fungerer men ikke optimalt.
*Sluk, membran og tettesjikt
Vurdering basert på alder. Tilstandsgrad 2 gis med bakgrunn i at mer enn halvparten av forventet brukstid for membran/tettesjikt er passert.
Det er nå ingen symptomer på funksjonssvekkelse, men vær oppmerksom på at dette er en risikokonstruksjon.
*Overflater gulv
Krav til fall (høydeforskjell) er ikke oppfylt, men det er fall til sluk.
Det er noe fall mot sluk i rommet, men stedvis noe mindre enn optimalt i dusjsone. Det er etablert en mindre dørsvill i dusj som hindrer vann å renne ut, men dette vil også hindre vann i å renne inn til sluk ved evt vannsøl utenfor dusjen. Hulrom under enkelte fliser, dvs de har sluppet i flislim.
*Sluk, membran og tettesjikt
Vurdering basert på alder. Tilstandsgrad 2 gis med bakgrunn i at mer enn halvparten av forventet brukstid for membran/tettesjikt er passert.
Det er nå ingen symptomer på funksjonssvekkelse, men vær oppmerksom på at dette er en risikokonstruksjon.
*Sanitærutstyr og innredning
Det er ikke synlig drens-spalte under wc. Dette medfører at man ikke vil avdekke evt. lekkasje fra skjult sisterne i vegg.
*Ventilasjon
Eier opplyste at varmeelement i anlegget e rkoblet bort. Anlegget begynner å bli noen år gammelt, sådan kan vedlikeholdsbehov forekomme. Koblet bort pga strømforbruk.
*Varmepumpe
Mer enn halvparten av forventet brukstid på varmesentral er oppbrukt.
Gjelder den nede. Ikke utført service
*Varmtvannstank
Det er ikke påvist tilfredsstillende el-tilkobling av varmtvannstank iht. gjeldende forskrift. I nye leiligheter og eneboliger skal man i henhold til nye forskrifter fasttilkoble
Disse punktene har fått tilstandsgrad 3:
*Utvendige trapper
På den ene trappen er det ingen håndløper, tg3. Det samme gjelder trappen ned mot veien i front. Manglende håndløper gir tg3 ihht NorskStandard.
Vi gjør oppmerksom på at dette kun er et sammendrag av tilstandsgradenes vurdering. Anbefalte tiltak finnes i rapport. Alle interessenter må sette seg inn i tilstandsrapporten i sin helhet.
Standard
Røsslyngstien 10 er en enebolig som ble oppført i 2010. Boligen har gjennomgående god standard.Boligen har en fin innvendig planløsning som strekker seg over tre etasjer. Innvendig er vegger lysmalte og gulv er lagt med parkett, fliser og laminat.
1. etasje:
Lys entrè med fliser og varme i gulv. Her er det god plass til å henge fra seg yttertøy.
I tilknytning til entrè/ gang er det dør inn til gjestetoalett som har fliser på vegg og gulv med varmekabler. Her er det innredet med vegghengt toalett og vask i seksjon. Stuen en lysmalt stue med flere store vindusflater som slipper inn rikelig med naturlig lys. Her kan man nyte den flotte utsikt mot Gillsvannet.
Det er god plass til både spisebord og sofagruppe i stuen.
Fjernstyrte utvendige persienner på de store vindusflatene mot syd og vest.
Kjøkken ligger adskilt fra stuen og er i hvit utførelse. Det er godt med skap- og benkeplass på kjøkkenet. Et praktisk kjøkken med flere gode detaljer. Integrerte hvitevarer som, stekeovn, mikrobølgeovn, oppvaskmaskin og koketopp. Praktisk kjøkkenøy med plass til barstoler.
2. etasje:
Innvendig trapp og gang med dør ut til innglasset veranda (vinterhage). Her har man god plass til utemøbler og grill. Ellers er det et fint "tørkeloft" for barnefamilier.
Her kan man sitte i le for vær og vind og nyte den fantastiske utsikten. Det er to soverom i denne etasjen. Begge soverommene er av god størrelse. Fra begge soverommene er det direkte dør inn til baderommet. Badet er tidløst og helfliset med varmekabler i gulv. Badet er innredet med vegghengt toalett, vask i seksjon, speil med belysning og dusjhjørne.
U. etasje:
Innvendig trapp og egen inngang fra utsiden.
Underetasjen har to soverom, stor bod med vaskerom og liten bod, stort bad og stue. Fra stuen i underetasjen er det terrassedør ut til en stor terrasse. Det er veldig gode solforhold på terrassen samt god plass til utemøbler, grill, putekasse og lignende.
Kjøkkenbenk med integrert oppvaskmaskin i gang tilknyttet stuen.
Annet
*Utenfor garasjen er det en el-bil lader som ble skiftet i 2023.
*Det er en utvendig bod med god plass til lagring. Det foreligger ingen
dokumentasjon på oppføring av bod. Se mer under punkt ferdigattest.
*Varmepumpe i hoved og underetasjen.
Teknisk:
INNVENDIGE VANN-OG AVLØPSLEDNINGER
Innvendig vannrør i boligen er av plast og med rør i rør utførelse. Vannskap er montert i bod i underetasje og bad i 1 etasje. Avløp fra skapet til baderomsgulv som har sluk. Vannrør er fra byggeår.
VENTILASJON
Boligens hovedventilasjon er med balansert ventilasjonsanlegg. Ventilasjonsaggregat er plassert på vegg i bod i U etasje.
VARMTVANNSBEREDER
Varmtvannstank er på 200 liter og har produksjonsår 2009. Berederen er plassert i bod i Underetasje.
ELEKTRISK ANLEGG
Elektrisk anlegg er i hovedsak fra byggeår. Automatsikringer med jordfeilbryter på alle kursene i sikringsskap i bod Underetasjen
DATA SPREDENETT:
Det er lagt opp Cat. 6 kabel til ca. 20 punkt i huset og disse samles i teleskap i bod underetasjen
BRANNTEKNISKE FORHOLD
Slukkeutstyr i boligen med håndsluknkingsapparat i underetasjen. Det er montert røykvarslere i hver etasje og hvert oppholds og soverom
Hva ellers gjelder det tekniske om boligen og eiendommen generelt, henvises det til tilstandsrapport og egenerklæringsskjema som ligger vedlagt i komplett salgsoppgave.
Det forutsettes at kjøper gjør seg kjent med disse før budgivning/ kjøp.
Løsøre og tilbehør
Det vises til vedlegget «Liste over løsøre og tilbehør», vedrørende hva som medfølger ved salget.Sjekk punktene i "liste over løsøre og tilbehør" og ta eventuelt kontakt med megler dersom det er uklarheter.
Oppvarming
-Ferdigattest/brukstillatelse
Det foreligger ferdigattest for Røsslyngstien 10 datert 09.11.2010Ferdigattest er en sluttattest fra bygningsmyndighetene om at et søknadspliktig tiltak er ferdigstilt.
At ferdigattest eksisterer gir ingen garanti for at det ikke er utført arbeid på boligen som ikke er byggemeldt eller godkjent.
Det foreligger vedtak til tillatelse for oppføring av vinterhage på eksisterende veranda i 2. etasje.
Påbygget vil gi et ekstra bruksareal på ca 17 kvm. datert 22.10.2012. Det foreligger ingen ferdigattest for oppføring av vinterhagen.
Det foreligger godkjente byggetegninger datert 22.04.2009
Det er følgende avvik:
Deler av soverom er opprinnelig bod på byggetegninger noe som er tilleggsdel til bolig. Bod er omgjort til entrè. Dette er bruksendringer fra tilleggs del til hoveddel og er søknadspliktige tiltak.
Det er oppført en frittstående utvendig bod . Det foreligger ingen dokumentasjon på oppføring av bod.
Kjøper påtar seg risikoen for fremtidig fortsatt bruk og eventuelle pålegg, for alle ovennevnte ulovlige forhold, herunder risikoen for om bruken lar seg godkjenne, og alle kostnader forbundet med dette. Det kan være krav i lov, forskrift og planverk som ikke er eller kan oppfylles, i så fall vil kommunen kunne kreve at evt rom settes tilbake til opprinnelig godkjent stand.
Mindre endringer som er gjort:
Vaskerom og toalett i 1. etasje er i dag slått sammen til ett rom. Bod/ vaskerom i underetasjen er i
dag delt inn i to separate rom.
Tinglyste heftelser og rettigheter
-Eventuell adgang til utleie
Det er tillatt å leie ut hele eller deler av egen bolig. Eiendommen har ikke separat utleieenhet. Det vil normalt være anledning til utleie av hele eiendommen eller enkeltrom, såfremt utleiearealet er bygningsmessig godkjent for varig opphold og har forsvarlige radonnivåer.Beliggenhet
Eiendommen ligger i et barnevennlig boligområde på Justneshalvøya i Kristiansand kommune. Rett utenfor døren er det lekeplass og fotballbane.Ellers nærmiljøet finner du padelbane, badestrender, båthavn, turstier og et godt utvalg av fritidsaktiviteter.
Fra eiendommen tar det ca. 12 minutter med bil til Kristiansand sentrum, rundt 13 minutter til Sørlandssenteret, 14 minutter til Dyreparken og 18 min til Kjevik lufthavn
Det er kort vei til populære tur- og badeområder som Gillsvann, Stupis og Ålefjærfjorden.
Førstnevnte kan også skilte med kajakkanlegg. Jegersberg, med lysløype og et løypenett som er tilgjengelig hele året.
Jegersberg er et utmerket utgangspunkt for lengre turer til Skråstadheia og Den omvendte båt hvor man blir premiert med utsikt over Kristiansand.
Drømmestien som er rett ved tomta viser utsikt over Topdalsfjorden. Fra Drømmestien kommer du rett ned til Trollstien.
Trollstien med sine spennende skulpturer kan også anbefales. Justvik har for øvrig et godt tilbud innen idrett.
Like ved Justvik barneskole ligger det kunstgressbane og ved Havlimyra ungdomsskole ligger flerbrukshall, fire fotballbaner og sandvolleyballbane.
Det er ellers ca. 10 km til Farvannet Skytebane og 18-hulls golfbane på Bjaavann. Kjevik lufthavn ligger også i nærheten
Rema 1000 , Extra Fagerholt og Joker Justvik er nærmeste matbutikker. Det er også Apotek, frisør, tannlege, hudpleiesalong, Evo treningsstudio, Trener 1 treningsstudio og MR.
Bilverksted på Fagerholt. Alle disse tilbudene og matbutikkene ligger rundt 2 km fra boligen.
For et større tilbud kan Kristiansand sentrum skilte med koselige handlegater, havnen og gode restauranter.
Kort rekkevidde med bil ligger også Sørlandsparken.
Kollektivtilbudet på Justneshalvøya består av buss. Nærmeste holdeplass er Fiolveien, som ligger ca. 270 meter unna.
Her går det buss fra morgenen av og utover dagen med 20 minutter mellomrom.
Adkomst
Se vedlagt kartskisse på høyre i annonsen. Ved å trykke på kartet får du enkelt adgangtil en spesifisert reiserute fra din startdestinasjon til boligen.
Barnehager, skoler og fritid
Fra eiendommen er det kort vei til Justvik / Fagerholt barneskole og Havlimyra ungdomsskole.Justvik skole åpnet i januar 2018 og ungdomsskolen var ny i 2010. Universitetet i Agder (UiA) ligger et kvarters kjøretur unna.
For øvrig har kommunen et godt utvalg av private og kommunale barnehager, hvor Havlimyra er den nærmeste
Beskrivelse av tomt
Flott opparbeidet tomt med asfaltert gårdsrom med plass til flere biler og solrik terrasseplatting på fremsiden av boligen. Innglasset terrasse i 2. etasje med nydelig utsikt ut over Gillsvannet.Eiendomsgrensene er oppgitt å være nøyaktige, med en oppmålingsnøyaktighet på 10 cm eller mindre. Informasjon om eiendomsgrenser og tomtens areal er hentet fra eiendomsmatrikkel, innhentet fra kommunen.
Dette er ikke en sikker kilde. På bakgrunn av dette tas det forbehold om at arealets størrelse på eiendommen kan avvike ved en eventuell oppmåling. Kjøper aksepterer dette.
Parkering
Det er parkering i garasjen og på egen asfalterte gårdsplass. Det er plass til parkering for 3 biler på denne plassen.Øvrig parkering etter områdets gjeldende bestemmelser.
Vei, vann og avløp
Eiendommen har adkomst fra offentlig vei.Eiendommen er tilknyttet offentlig vann og avløp. Det er private stikkledninger ut til kommunens nett. Eier er selv ansvarlig for de private stikkledningene.
Regulerings-og arealplaner
Eiendommen er regulert til boligbebyggelse, og ligger i et område med reguleringsplanJustneshalvøya- Felt A1, A2 og C2 med planid 899A ikrafttredelse 16.08.2007.
Gjeldende kommuneplan er kommuneplanens arealdel 2024-2035, datert 28-02-2024 med planid: 1600 med arealformål bebyggelse og anlegg.
Godkjente byggetiltak:
Område er under utvikling og det er godkjent en boligblokk i samme område. Det kan medføre støy under byggeprosess.
Utsnitt av reguleringskart følger vedlagt. Reguleringsbestemmelser kan sendes forespørsel.
Dersom det er ønskelig med ytterligere opplysninger knyttet til reguleringsforhold så oppfordrer vi interessenter til å kontakte Kristiansand kommune.
Fellesutgifter
-Kommunale utgifter
Abonnementsgebyr vann: kr. 1 656,-Forbruk vann stipulert: kr. 2 358,50,-
Abonnementsgebyr avløp: kr. 3 099,-
Forbruk avløp stipulert: kr. 5 188,70,-
Renovasjon: kr. 4 396,-
Totalt kr. 16 698,2,-
Eiendomsskatt
Eiendomsskatten utgjør kr. 16 698 ,- pr år.Omkostninger
6 890 000,- (Prisantydning)Omkostninger:
12 900,- (Boligkjøperforsikring (valgfritt))
172,- (Pantattest kjøper - lagt ut av megler)
585,- (Tingl.gebyr pantedokument)
585,- (Tingl.gebyr skjøte)
172 250,- (Dokumentavgift (forutsatt salgssum: 6 890 000,00))
186 492,- (Omkostninger totalt)
7 076 492,- (Totalpris inkl. omkostninger) ink. boligkjøperforsikring.
Tilbud om lånefinansiering
-Betalingsbetingelser
I henhold til lov om hvitvasking og terrorfinansiering har megler plikt til å gjennomføre kontrolltiltak ovenfor kunder. Dette innebærer å bekrefte kunders identitet på bakgrunn av fremvist gyldig legitimasjon. Videre innebærer det å få bekreftet identiteten til eventuelle reelle rettighetshavere, og å innhente opplysninger om kundeforholdets formål og tilsiktede art.Dersom slike kundetiltak ikke kan gjennomføres kan megler ikke etablere kundeforholdet eller utføre transaksjonen.
Kjøper oppfordres til å innbetale kjøpesummen som ikke kommer fra låneinstitusjon, i en samlet innbetaling fra egen konto i norsk bank.
Dersom megler får mistanke om brudd på hvitvaskingsreglementet i forbindelse med en eiendomshandel, og han ikke klarer å få avkreftet denne mistanke, har han plikt til å rapportere dette til Økokrim.
Melding sendes Økokrim uten at partene varsles. Megler kan i enkelte tilfeller også ha plikt til å stanse gjennomføring av handelen. Kjøpesum inkludert omkostninger skal være innbetalt til Spareskillingsmegleren sin klientkonto før overtakelse.
Eier
-Boligselgerforsikring
Selger har tegnet boligselgerforsikring. Se vedlagte egenerklæringsskjema med opplysninger om eiendommen.Boligkjøperforsikring
Mange kjøpere har anledning til å tegne boligkjøperforsikring. Vedlagt i salgsoppgaven følger informasjon om Boligkjøperforsikring fra HELP Forsikring AS. Boligkjøperforsikring er en rettshjelpsforsikring som gir trygghet og profesjonell juridisk hjelp dersom det oppdages uventede feil eller mangler ved boligen de neste fem årene. Les mer om Boligkjøperforsikring i vedlagte materiell eller på help.no. Det gjøres oppmerksom på at meglerforetaket mottar kr 4 700,- / 5 200,- / 6 800,- i kostnadsgodtgjørelse for Boligkjøperforsikring (avhengig av boligtype).Budgivning
-Hvitvaskingsreglene
Eiendomsmeglere er underlagt lov om hvitvasking og er forpliktet til å rapportere til Økokrim om mistenkelige transaksjoner. Lov om hvitvasking innehar også strenge regler om kontroll av legitimasjon fra alle parter i handelen, herunder, selger, kjøper og fullmektiger for disse.Personopplysningsloven
Personopplysninger blir behandlet i samsvar med personopplysningsloven.Lovanvendelse
Tilbehørsliste som er utarbeidet av meglerbransjen i fellesskap er inntatt i salgsoppgaven, og gjelder dersom ikke annet er særskilt avtalt.Generelle bestemmelser
Salgsoppgaven er basert på de opplysningene selger har gitt til megler, den bygningssakyndiges tilstandsrapport, samt opplysninger innhentet fra kommunen, Kartverket og andre tilgjengelige kilder. Det er viktig at kjøper setter seg grundig inn i alle salgsdokumentene, herunder salgsoppgave, tilstandsrapport og selgers egenerklæring. Kjøper anses kjent med forhold som er tydelig beskrevet i salgsdokumentene, og slike forhold kan ikke påberopes som mangler. Dette gjelder uavhengig av om kjøper har lest dokumentene. Alle interessenter oppfordres til å undersøke eiendommen nøye, gjerne sammen med fagkyndig før bud inngis. Kjøper som velger å kjøpe usett kan ikke gjøre gjeldende som mangel noe han burde blitt kjent med ved undersøkelsen.
Dersom det er behov for avklaringer, anbefaler vi at interessenter rådfører seg med eiendomsmegler eller egne rådgivere før det legges inn bud.
En bolig som har blitt brukt i en viss tid, har vanligvis blitt utsatt for slitasje og skader kan ha oppstått. Slik bruksslitasje må kjøper regne med, og det kan avdekkes enkelte forhold etter overtakelse som nødvendiggjør utbedringer. Normal slitasje og skader som nødvendiggjør utbedring, er innenfor hva kjøper må forvente og vil ikke utgjøre en mangel.
Kjøper og selgers rettigheter og plikter reguleres av avtalen mellom partene, samt informasjonen som har vært tilgjengelig for kjøperen i forbindelse med handelen. Avtalen utfylles av avhendingsloven, og det gjelder ulike avtalevilkår avhengig av om kjøper er forbrukerkjøper eller ikke. Dette er nærmere beskrevet nedenfor.
På grunn av ulike avtalevilkår kan selger vurdere bud fra en som ikke er forbruker, ulikt fra en forbrukers bud. Dersom kjøper ikke er forbruker, er selger sitt mulige mangelsansvar begrenset fordi eiendommen selges "som den er". Selger kan ikke ta «som den er» forbehold ovenfor en forbrukerkjøper. Selv et lavere bud fra en som ikke er forbruker kan foretrekkes fordi begrensningen i mulig mangelsansvar kan ha egenverdi for selger. Selger står fritt til å forkaste eller akseptere ethvert bud, og er for eksempel ikke forpliktet til å akseptere høyeste bud.
Budgiver skal i budskjema avgi egenerklæring om budgiver er forbruker eller næringsdrivende/ person som hovedsakelig handler som ledd i næringsvirksomhet. Budgivere får informasjon dersom andre bud er inngitt av en som ikke er forbruker. Forbrukerkjøp - definisjon Med forbrukerkjøp menes kjøp av eiendom når kjøperen er en fysisk person som ikke hovedsakelig handler som ledd i næringsvirksomhet.
Forbruker – avtalevilkår Eiendommen har en mangel dersom den ikke er i samsvar med kravene som følger av avtalen, eller det foreligger brudd på bestemmelsene i avhendingsloven §§ 3-2 til 3-8. Hvis eiendommen ikke er i samsvar med det kjøperen må kunne forvente ut ifra alder, type og synlig tilstand, kan det være grunnlag for mangelskrav. Det samme gjelder hvis det er holdt tilbake eller gitt uriktige opplysninger om eiendommen. Dette gjelder likevel bare dersom man kan gå ut ifra at det virket inn på avtalen at opplysningen ikke ble gitt eller at uriktige opplysninger ikke blir rettet i tide på en tydelig måte.
Boligen kan ha en mangel etter avhendingsloven § 3-3 dersom det er avvik mellom opplyst og faktisk innvendig areal, forutsatt at avviket er på 2% eller mer og minimum 1 kvm. Ved beregning av et eventuelt prisavslag eller erstatning må kjøper selv dekke tap/ kostnader opptil et beløp på kr 10 000 (egenandel). Ikke-forbruker (næringsdrivende) – definisjon Hvis kjøper er en juridisk person, eller en fysisk person som hovedsakelig handler som ledd i næringsvirksomhet, vil kjøpet ikke anses som et forbrukerkjøp.
Ikke-forbruker – avtalevilkår Eiendommen har en mangel dersom den ikke er i samsvar med kravene som følger av avtalen. Eiendommen selges «som den er», og selgers ansvar utover det konkret avtalte er da begrenset etter avhendingsloven § 3-9, første ledd andre setning.
Avhendingsloven § 3-3 andre ledd fravikes, og hvorvidt boligens arealsvikt utgjør en mangel vurderes etter avhendingsloven § 3-8. Informasjon om kjøpers undersøkelsesplikt, herunder oppfordringen om å undersøke eiendommen nøye, gjelder også for kjøpere som ikke anses som forbrukere.
Meglers vederlag
-Dato
Sist oppdatert: 23. september 2025 kl. 08:38Område
Megler

Magnus Kåsa Minde
Salgssjef - Eiendomsmegler MNEF
Magnus (26) har et sterkt engasjement for salg og kundeopplevelser. Til tross for sin unge alder har han over ti års erfaring innen salg, og jobber dedikert for å sikre en god, trygg og lønnsom bolighandel for både kjøper og selger.
Magnus bor på Justneshalvøya med kona, datteren og hunden.
«Som eiendomsmegler er jeg opptatt av detaljer og brenner for å skape gode kundeopplevelser».